Custom Homes

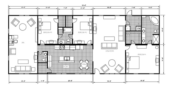
planE

Bookmark the permalink.

© 2025 Lakeshore Communities. All rights reserved.